Development Application | 23 Freeman Loop North Fremantle (DA0146/20)

Share Development Application | 23 Freeman Loop North Fremantle (DA0146/20) on Facebook Share Development Application | 23 Freeman Loop North Fremantle (DA0146/20) on Twitter Share Development Application | 23 Freeman Loop North Fremantle (DA0146/20) on Linkedin Email Development Application | 23 Freeman Loop North Fremantle (DA0146/20) link

Consultation has concluded. This application was approved at Planning Committee on 5 August 2020, subject to conditions. 

Internal Plans

The City of Fremantle has received a development proposal for a change of use to Small Bar and Alterations.


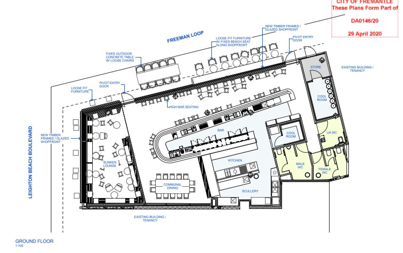
The application proposes to deliver a change of use to Small Bar and Alterations, at Strata Lot 1 and 2, 23 Freeman Loop North Fremantle.


Where can I see the plans?

The plans and associated documents are available in the document library. You can also download a copy of the plans here and the supporting documents here.


How can I find out more?

If you would like to find out more about the proposal:


How can I make a submission?

There are several ways in which you can provide feedback:


Submissions close 5.00pm Monday 25 May 2020.

The City of Fremantle has received a development proposal for a change of use to Small Bar and Alterations.


The application proposes to deliver a change of use to Small Bar and Alterations, at Strata Lot 1 and 2, 23 Freeman Loop North Fremantle.


Where can I see the plans?

The plans and associated documents are available in the document library. You can also download a copy of the plans here and the supporting documents here.


How can I find out more?

If you would like to find out more about the proposal:


How can I make a submission?

There are several ways in which you can provide feedback:


Submissions close 5.00pm Monday 25 May 2020.

Consultation has concluded. This application was approved at Planning Committee on 5 August 2020, subject to conditions. 

  • Approved by Planning Committee

    Share Approved by Planning Committee on Facebook Share Approved by Planning Committee on Twitter Share Approved by Planning Committee on Linkedin Email Approved by Planning Committee link

    The application was approved under delegated authority at the Planning Committee meeting on 5 August 2020, subject to conditions. These conditions include (in accordance with the approved Noise Management Plan) the alfresco dining area is not to be used after 9.00pm, Sunday to Thursday and 10.00pm Friday and Saturday.

    To find out more and read the full details you can access the minutes here or visit: fremantle.wa.gov.au/council/agendas-and-minutes

    The application was approved under delegated authority at the Planning Committee meeting on 5 August 2020, subject to conditions. These conditions include (in accordance with the approved Noise Management Plan) the alfresco dining area is not to be used after 9.00pm, Sunday to Thursday and 10.00pm Friday and Saturday.

    To find out more and read the full details you can access the minutes here or visit: fremantle.wa.gov.au/council/agendas-and-minutes

    Consultation has concluded. This application was approved at Planning Committee on 5 August 2020, subject to conditions. 

  • Application to Planning Committee - 5 August 2020

    Share Application to Planning Committee - 5 August 2020 on Facebook Share Application to Planning Committee - 5 August 2020 on Twitter Share Application to Planning Committee - 5 August 2020 on Linkedin Email Application to Planning Committee - 5 August 2020 link

    This development application is going to the Planning Committee on Wednesday 5 August 2020, 6.00pm. North Fremantle Community Centre, 2 Thompson Rd North Fremantle.

    Further information can be found in the Planning Committee agenda which is available online from Friday 31 August by clicking here or visiting: fremantle.wa.gov.au/council/agendas-and-minutes


    Attending Committee or Council

    Members of the public are welcome to ask a question, make a statement or just observe the proceedings at open meetings.

    The opportunity to address the Committee on the proposal is limited to a maximum of three minutes. You must register your intent to speak at Planning Committee with the minute secretary:

    • In person before 5.50pm on the day of the meeting, or
    • By email to planning@fremantle.wa.gov.au or phone 1300 693 736 prior to 3.00pm on the day of the meeting.

    This development application is going to the Planning Committee on Wednesday 5 August 2020, 6.00pm. North Fremantle Community Centre, 2 Thompson Rd North Fremantle.

    Further information can be found in the Planning Committee agenda which is available online from Friday 31 August by clicking here or visiting: fremantle.wa.gov.au/council/agendas-and-minutes


    Attending Committee or Council

    Members of the public are welcome to ask a question, make a statement or just observe the proceedings at open meetings.

    The opportunity to address the Committee on the proposal is limited to a maximum of three minutes. You must register your intent to speak at Planning Committee with the minute secretary:

    • In person before 5.50pm on the day of the meeting, or
    • By email to planning@fremantle.wa.gov.au or phone 1300 693 736 prior to 3.00pm on the day of the meeting.

    Consultation has concluded. This application was approved at Planning Committee on 5 August 2020, subject to conditions.