Skip to content
Home
City of Fremantle website
View All Projects
Sign in
Register
Home
/
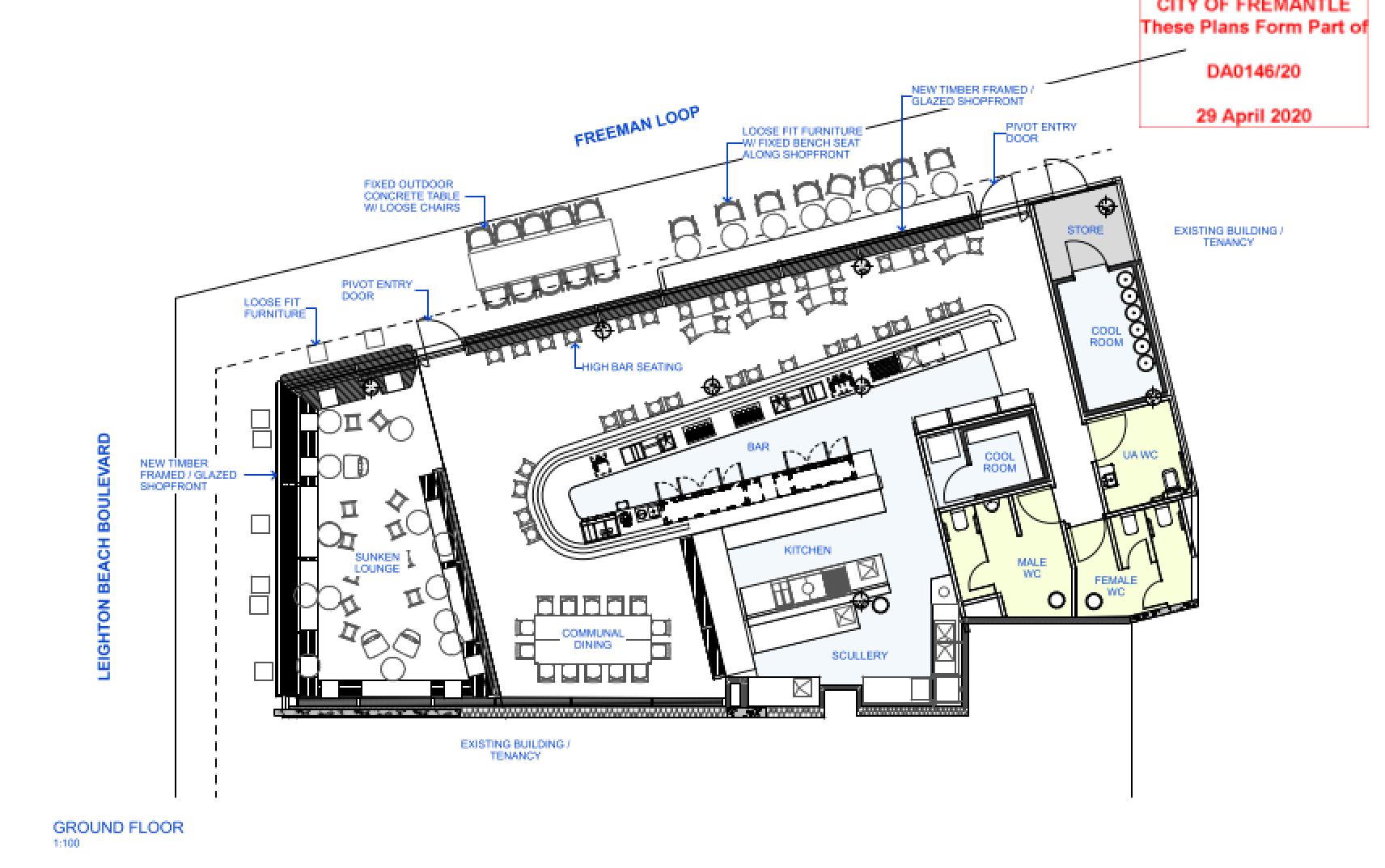
Development Application | 23 Freeman Loop North Fremantle (DA0146/20)
/
Submission Form - 23 Freeman Loop North Fremantle (DA0146/20)
CLOSED: Submissions have now closed.
Submission Form - 23 Freeman Loop North Fremantle (DA0146/20)
Please write your submission in the space provided or attach a file below.