Development Application | 312 South Terrace South Fremantle (DA0513/20)
Share Development Application | 312 South Terrace South Fremantle (DA0513/20) on Facebook
Share Development Application | 312 South Terrace South Fremantle (DA0513/20) on Twitter
Share Development Application | 312 South Terrace South Fremantle (DA0513/20) on Linkedin
Email Development Application | 312 South Terrace South Fremantle (DA0513/20) link
Consultation has concluded
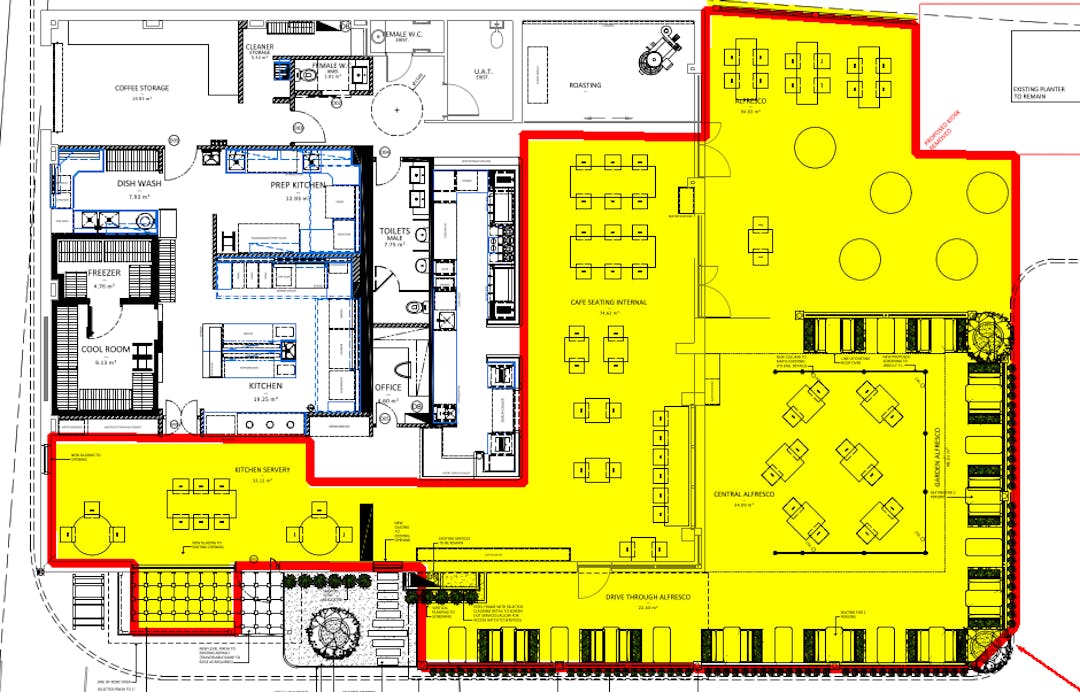
The City of Fremantle has received a development proposal for an 'Increased Dining Area' to the existing restaurant at 312 South Tce South Fremantle.
Where can I see the plans?
The plans and associated documents are available in the document library or can be viewed during business hours at the City's customer service desk. You can also download a copy here.
How can I find out more?
If you would like to find out more about the proposal:
- Contact Justin Lawrence at the City of Fremantle by calling 1300 MY FREO (1300 69 3736) or email planning@fremantle.wa.gov.au
How can I make a submission?
There are several ways in which you can provide feedback:
- online (below), or
- send an email to planning@fremantle.wa.gov.au
Submissions close 5.00pm Wednesday, 13 January 2021.
Consultation has concluded
 
